本文へスキップします

ここから本文です。

スマートハイムプレイス巳六段 A棟

戸建 新着物件

スマートハイムプレイス巳六段
A棟

  • 対面キッチンからリビング・階段まで見渡せるLDK空間です。ペンダント照明とリビング階段が特徴です。

    A棟LDK/2025年12月撮影

太陽光発電システム
蓄電池
スマートハイムナビ(HEMS) 
快適エアリー
第一種換気システム
ペアガラス
IHクッキングヒーター
食器洗い乾燥機(食洗機)
食器棚
ウォークインクローゼット
スマートキー
電気自動車用コンセント
宅配ボックス
販売価格
52,200,000円(税込)
建物面積 103.79㎡ (31.39坪)
土地面積 177.94㎡ (53.82坪)
地目 宅地

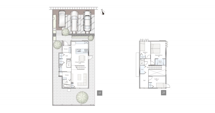
間取り

対象物件の間取り図です。

A棟間取図/記載の自動車、家具は価格に含まれません。

建売物件写真

玄関収納は二の字フロートタイプを採用。床・天井と切り離す事で空間を広く見せてくれます。
玄関ホールにはタイプの異なる収納を2つ並べて設置。レインコートやダウンジャケット等、居室に持ち込まずに収納できます。
洗面を1階ホールへ配置。脱衣室とは別空間にする事で遠慮なくいつでも使えます。
独立した脱衣室には脱衣カウンターを設けております。洗濯機置き場の上には欄窓が設置してあり明るい空間です。
白を基調とした清潔感のあるユニットバス。快適なバスタイムを過ごすことが出来ます。
家族と会話をしながら調理ができる対面キッチン。調理の手元がダイニング側から直接見えない実用性と開放感を兼ね備えています。
ダイニングテーブルで使うものをキッチンのダイニング側収納にしまえるので食事の支度もスムーズに。
オープン階段を採用する事でダイニングとリビングをおしゃれに閉塞感なくエリア分けしています。
階段部分は吹き抜けになっていてリビングに開放感を与えてくれています。
主寝室の3列縦長窓は外観をおしゃれに演出してくれています
A棟省エネ性能ラベル

区画図

対象物件の区画図です。

現地案内図

スマートハイムプレイス巳六段を中心にした周辺地図。周辺の施設には保育園、公園、病院、商業施設などが表示されています。

分譲地全体概要

所在地 福島県郡山市巳六段129番1他(カーナビマップコード:61 732 259*25)
交通 福島交通バス「鎗ケ池団地入口」バス停まで徒歩3分(約220~240m)
私道負担
総区画数 5区画(建築条件付宅地3区画・分譲住宅2区画)
用途地域 第一種低層住居専用地域
建ぺい率 50%
容積率 100%
法令制限
開発許可番号
開発面積
道路幅員 北側約6.0m公道・西側約6.0m公道(アスファルト舗装)
その他の
費用負担
建築協定
街並み協定
取引態様 売主
売主 セキスイハイム東北株式会社 福島支店
福島県郡山市島2丁目50番15号 tel.024-932-8160
宅地建物取引業免許:国土交通大臣(9)第3749号
建設業者許可番号:国土交通大臣許可(特-5)第13887号
(公社)福島県宅地建物取引業協会会員
東北地区不動産公正取引協議会加盟
販売代理
広告主 セキスイハイム東北株式会社 福島支店
福島県郡山市島2丁目50番15号 tel.024-932-8160
宅地建物取引業免許:国土交通大臣(9)第3749号
建設業者許可番号:国土交通大臣許可(特-5)第13887号
(公社)福島県宅地建物取引業協会会員
東北地区不動産公正取引協議会加盟
問い合せ先 0120-965-578(セキスイハイム東北株式会社 福島支店)
備考
情報登録日 2026年5月8日(金)
次回更新
予定日
2026年5月22日(金)

分譲住宅概要

販売価格 52,200,000 円(税込)
建物面積
103.79㎡
(31.39坪 )
土地面積
177.94㎡
(53.82坪 )
地目 宅地
規模構造 軽量鉄骨造ユニット工法2階建
建築確認番号 第ERI-25031715号(2025年9月30日)
完成時期 A棟:2025年12月
引渡時期 A棟:即
設備
東北電力、郡山市上下水道、オール電化(建物・敷地へガス管の引き込みはありません)
太陽光発電6.44kW、蓄電池4.9kWh、スマートハイムナビ、1階快適エアリー、ペアガラス、オール電化(エコキュート・IH)
建築
ガイドライン
建築にあたり、当販売団地におけるガイドラインに沿った建築をしております。
備考
記載の販売価格には土地・建物価格、外構(駐車場・門柱・植栽等)、消費税10%を含みます。
自動車・その他の備品は価格に含まれません。
記載の建物面積は未登記のため、建築確認申請書等の面積に依ります。
記載の間取図は概略図のため、実際と異なる場合があります。

お問い合わせ

セキスイハイム東北株式会社 福島支店
0120-965-578
| 営業時間 10:00~18:00 |
※定休日は火曜日、水曜日です。
※年末年始・夏季休暇を頂いている場合があります。