本文へスキップします

ここから本文です。

スマートハイムシティ箱崎 B棟

戸建

スマートハイムシティ箱崎
B棟

  • 濃い外壁と縦格子のデザインが特徴的な二階建ての家で、整えられた植栽と段差のあるアプローチが重厚で落ち着いた印象を与えています。

    ブラック色の外壁にブラウン色の格子を合わせ高級感のある仕上がりに。駐車場は並列で3台駐車可能。/2025年10月撮影

太陽光発電システム
蓄電池
スマートハイムナビ(HEMS) 
快適エアリー
第一種換気システム
トリプルガラス
全室照明付
エアコン1台
浴室乾燥機
IHクッキングヒーター
食器洗い乾燥機(食洗機)
食器棚
ウォークインクローゼット
スマートキー
電気自動車用コンセント
宅配ボックス
販売価格
48,100,000円(税込)
建物面積 100.33㎡ (30.34坪)
土地面積 242.29㎡ (73.29坪)
地目 宅地

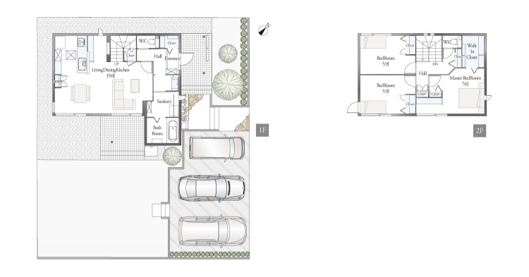
間取り

対象物件の間取り図です。

B棟間取図/記載の自動車は価格に含まれません。

建売物件写真

コーナー開口とカーテンボックスの間接照明がポイントのLDK。全体的に柔らかく明るい雰囲気に仕上がっています。
キッチン背面のカップボードは収納力がある食器棚タイプを採用しています。
ゆったりと幅のある洗面台は、玄関横に設置されており帰宅後すぐに手洗いができる動線になっています。
石目調のフロアタイルがおしゃれな脱衣室。物干しと収納を完備していて機能性にも優れています。
白を基調としたシンプルで清潔感のある浴室。
主寝室は全体を白でまとめ圧迫感が無くより広く感じるよう仕上げています。
主寝室内に備え付けられたカウンター。読書やPCスペース、化粧スペースとしてもご利用いただけます。
コの字型のWICは、たっぷりの収納量で空間を無駄なく有効にご利用いただけます。
2階に2部屋ある洋室は、どちらも大容量のクローゼットを完備しています。
※特定の住戸の性能を示すものであり、全ての住戸の性能を示すものではありません。

区画図

区画図。10区画の分譲地が配置されており、各区画に番号が振られています。周囲には道路があり、一部に緑地も設けられています。
拡大区画図には、各区画の面積と寸法が詳細に示されています。4番から10番までの区画があり、広さは202.45平方メートルから240.75平方メートルです。6メートル幅の公道に面しており、電柱の位置も記されています。

現地案内図

分譲地全体概要

所在地 福島県伊達市箱崎字布川44番19他(カーナビマップコード:76 257 171*76)
交通 JR東北本線「伊達」駅徒歩32分(約2,490~2,550m)
私道負担
総区画数 73区画(内当社区画10区画:建築条件付宅地7区画・分譲住宅3区画)
用途地域 第一種中高層住居専用地域
建ぺい率 60%
容積率 200%
法令制限 箱崎布川地区計画
開発許可番号 伊達市指令建都第106号(2022年9月26日)
開発面積 35,095.81㎡
道路幅員 公道約6.0m(アスファルト舗装)
その他の
費用負担
浄化槽維持管理費がかかります。
建築協定
街並み協定
取引態様 売主
売主 セキスイハイム東北株式会社 福島支店
福島県郡山市島2丁目50番15号 tel.024-932-8160
宅地建物取引業免許:国土交通大臣(9)第3749号
建設業者許可番号:国土交通大臣許可(特-5)第13887号
(公社)福島県宅地建物取引業協会会員
東北地区不動産公正取引協議会加盟
販売代理
広告主 セキスイハイム東北株式会社 福島支店
福島県郡山市島2丁目50番15号 tel.024-932-8160
宅地建物取引業免許:国土交通大臣(9)第3749号
建設業者許可番号:国土交通大臣許可(特-5)第13887号
(公社)福島県宅地建物取引業協会会員
東北地区不動産公正取引協議会加盟
問い合せ先 0120-965-578(セキスイハイム東北株式会社 福島支店)
備考
情報登録日 2026年5月22日(金)
次回更新
予定日
2026年6月5日(金)

分譲住宅概要

販売価格 48,100,000 円(税込)
建物面積
100.33㎡
(30.34坪 )
土地面積
242.29㎡
(73.29坪 )
地目 宅地
規模構造 軽量鉄骨造ユニット工法2階建
建築確認番号 第R06確認建築東建セ-0689号(2023年10月7日)
完成時期 A棟:2025年2月、B棟:2025年1月、C棟:2025年7月
引渡時期
設備
伊達市上水道、個別浄化槽、東北電力、オール電化(建物・敷地へのガス管の引き込みはありません)
太陽光発電5.56kW、蓄電池9.9kWh、スマートハイムナビ、トリプルガラス、オール電化(エコキュート・IH)、エアコン1台、照明、レースカーテン
建築
ガイドライン
建築にあたり、当販売団地におけるガイドラインに沿った建築をしております。
備考
記載の販売価格には土地・建物価格、家具(C棟のみ)外構(駐車場・門柱・境界フェンス・植栽等)、消費税10%を含みます。
その他の備品は価格に含まれません。
記載の建物面積は未登記のため、建築確認申請書等の面積に依ります。
記載の間取図は概略図のため、実際と異なる場合があります。
間取図に記載の家具は現況と異なります。

お問い合わせ

セキスイハイム東北株式会社 福島支店
0120-965-578
| 営業時間 10:00~18:00 |
※定休日は火曜日、水曜日です。
※年末年始・夏季休暇を頂いている場合があります。