【予告広告】スマートハイムプレイス古川大幡Ⅲ 分譲住宅 大崎市古川大幡
2026.01.31 00:00
予告広告
販売開始予定時期:2026年4月中旬
本物件は本広告を行うまでは、契約または予約の申込みに一切応じられません。また、申込み順位の確保に応じる処置も講じられません。
本物件は本広告を行うまでは、契約または予約の申込みに一切応じられません。また、申込み順位の確保に応じる処置も講じられません。
分譲住宅B棟・C棟が2026年4月中旬に販売開始予定
資料請求受付開始
区画図
MAP
外観
外観-B棟(2026年1月撮影)
外観-C棟(2026年1月撮影)
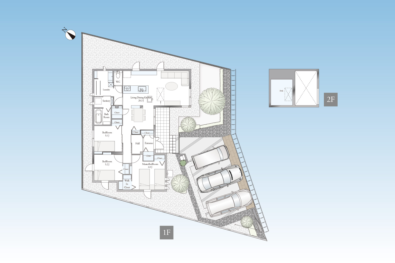
間取プラン
※図面に記載している車両、その他の調度品はあくまで生活イメージを表現したもので販売価格には含まれません。
省エネ性能ラベル
省エネ性能ラベル-B棟
省エネ性能ラベル-C棟
※上記のラベルはB棟・C棟のものです。
※使用環境等によってはエネルギー収支がゼロにならない場合があります。
※使用環境等によってはエネルギー収支がゼロにならない場合があります。
資料請求受付開始
◉分譲地全体概要
所在地:宮城県大崎市古川大幡字月蔵90番10・90番12・90番14他/交通:JR東北新幹線・陸羽東線「古川」駅徒歩17分(約1,330m)/私道負担:No.1:182㎡の内持分20分の1、/総区画数:全4区画(建築条件付宅地1区画・分譲住宅3区画)/用途地域:第1種低層住居専用地域/建ぺい率:40%/容積率:60%/道路幅員:約6m私道(アスファルト舗装)/取引形態:売主/売主:セキスイハイム東北株式会社 宮城支店 宮城県仙台市宮城野区榴岡3-4-1 アゼリアヒルズ11階 宅地建物取引業免許:国土交通大臣(9)第3749号 建設業者許可番号:国土交通大臣許可(特-5)第13887号 (公社)宮城県宅地建物取引業協会会員 東北地区不動産公正取引協議会加盟/広告主:セキスイハイム東北株式会社 宮城支店 宮城県仙台市宮城野区榴岡3-4-1 アゼリアヒルズ11階 宅地建物取引業免許:国土交通大臣(9)第3749号 建設業者許可番号:国土交通大臣許可(特-5)第13887号 (公社)宮城県宅地建物取引業協会会員 東北地区不動産公正取引協議会加盟/問い合わせ先:セキスイハイム東北株式会社 宮城支店 0120-028-816/所要時間は徒歩80m/分で算出しています。
◉分譲住宅概要(B棟)
所在地:宮城県大崎市古川大幡字月蔵90番8/販売価格:未定/土地面積:197.27㎡(59.67坪)/建物面積:104.71㎡(31.67坪)/地目:宅地/建物構造:軽量鉄骨造ユニット工法2階建/建築確認番号:第R07-建築確認東建セ-0289号(2025年8月4日)/完成時期:2025年11月/引渡時期:相談/設備:東北電力・大崎市上水道・個別浄化槽・オール電化仕様(建物へのガスの配管はありません)/備考:販売される価格には土地・建物価格、外構(駐車場・門柱・境界フェンス・植栽等)、消費税10%を含みます。自動車・その他の備品は含まれません。記載の建物面積は未登記のため、建築確認申請の面積に依ります。記載の間取図は概要のため、実際と異なる場合があります。
◉分譲住宅概要(C棟)
所在地:宮城県大崎市古川大幡字月蔵90番6/販売価格:未定/土地面積:264.79㎡(80.09坪)/建物面積:91.22㎡(27.59坪)/地目:宅地/建物構造:軽量鉄骨造ユニット工法1階建/建築確認番号:第R07-建築確認東建セ-0290号(2025年8月4日)/完成時期:2025年11月/引渡時期:相談/設備:東北電力・大崎市上水道・個別浄化槽・オール電化仕様(建物へのガスの配管はありません)/備考:販売される価格には土地・建物価格、外構(駐車場・門柱・境界フェンス・植栽等)、消費税10%を含みます。自動車・その他の備品は含まれません。記載の建物面積は未登記のため、建築確認申請の面積に依ります。記載の間取図は概要のため、実際と異なる場合があります。



