本文へスキップします

ここから本文です。

【登録抽選販売】スマートハイムシティ郡山 E棟

戸建 新価格物件

【登録抽選販売】スマートハイムシティ郡山
E棟

  • 淡い木目の床と天井に包まれた明るいリビングダイニング。グレーのソファと木製のテーブルがあり、奥には白い階段が続いています。

    いつでもご家族の気配を感じられるリビング内階段。木のぬくもりが感じられるリラックスできる空間。/2025年10月撮影/リビング

太陽光発電システム
蓄電池
スマートハイムナビ(HEMS) 
快適エアリー
高耐久外壁
全室照明付
エアコン3台
IHクッキングヒーター
食器洗い乾燥機(食洗機)
食器棚
ウォークインクローゼット
スマートキー
電気自動車用コンセント
宅配ボックス
販売価格
64,300,000 円(税込)
1000万円プライスダウン
新価格公示日:2025年12月26日
旧価格: 74,300,000 円(税込) 旧価格公示日:2025年10月4日
建物面積 95.89㎡ (29.00坪)
土地面積 220.08㎡ (66.57坪)
地目 宅地

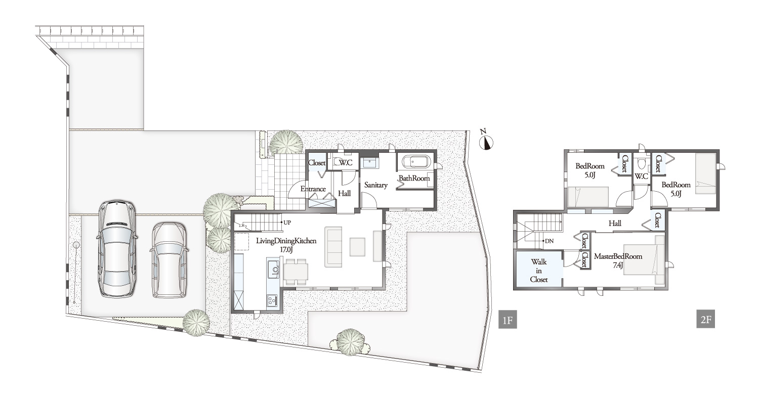
間取り

E棟間取図/記載の自動車は価格に含まれません

建売物件写真

南面から明るい陽が差し込むリビング。17帖はダイニング、ソファセットを配置してもゆとりの空間です。
背面には食器棚と家電収納を配置。カウンター下はゴミ箱が入るワゴン収納付。
靴収納とコート掛け、2つの収納を配置。ベビーカーも収納できます。
ホワイトで統一された清潔感ある洗面脱衣室、物干しスペースからお庭にも出入りできます。
間接照明があたたかくつつむリビング、ゆったりとした時間がながれる空間。
ベッド2台置いてもゆとりある、ウォークインクローゼット隣接の主寝室
寝室内に大型のウォークインクローゼット。洋服の他にお布団や季節のものもたっぷり収納。
カーテン、エアコンも標準装備のお部屋。子供部屋や来客用としても〇
外観のアクセントにもなる小窓があるお部屋、明るい陽が差し込む洋室。
本棚スペースのほかにおもちゃやホビーグッズの収納としても便利。
夜の灯りがやさしく包み込む、心落ち着くわが家。

区画図

区画図です。川が右側を流れています。ご成約済という表示の区画がいくつかあり、E棟が記載されています。左上には北方向を示すコンパスが描かれています。

現地案内図

スマートハイムシティ郡山の周辺地図。周辺の施設には、複数の保育園、セブンイレブン、ホテルルートインなどが表示されています。
カーナビ検索|21 497 081*68

分譲地全体概要

所在地 宮城県仙台市太白区郡山5丁目214番55、214番26(カーナビマップコード 21 497 081*68)
交通 JR「太子堂」駅より徒歩16分 (約1,260m)/ JR「長町」駅より徒歩19分 (約1,520m)
私道負担 有(270㎡のうち持分8分の1)
総区画数 13区画(内当社10区画 建築条件付き宅地5区画 分譲住宅5区画)
用途地域 第2種住居地域
建ぺい率 60%
容積率 200%
法令制限 文化財保護法
開発許可番号
開発面積
道路幅員 約6.0m私道(アスファルト舗装)
その他の
費用負担
建築協定
街並み協定
取引態様 売主
売主 セキスイハイム東北株式会社 宮城支店 宮城県仙台市宮城野区榴岡3-4-1 アゼリアヒルズ11階 tel.022-369-3812
宅地建物取引業免許:国土交通大臣(9)第3749号
建設業者許可番号:国土交通大臣許可(特-5)第13887号
(公社)宮城県宅地建物取引業協会会員・東北地区不動産公正取引協議会加盟
販売代理
広告主 セキスイハイム東北株式会社 宮城支店 宮城県仙台市宮城野区榴岡3-4-1 アゼリアヒルズ11階 tel.022-369-3812
宅地建物取引業免許:国土交通大臣(9)第3749号
建設業者許可番号:国土交通大臣許可(特-5)第13887号
(公社)宮城県宅地建物取引業協会会員・東北地区不動産公正取引協議会加盟
問い合せ先 0120-028-816 セキスイハイム東北株式会社 宮城支店
備考
情報登録日 2026年1月2日(金)
次回更新
予定日
2026年1月16日(金)

分譲住宅概要

販売価格 64,300,000 円(税込)
建物面積
95.89㎡
(29.00坪 )
土地面積
220.08㎡
(66.57坪 )
地目 宅地
規模構造 軽量鉄骨ユニット工法2階建
建築確認番号 第ERI-23003741号(2023年2月3日)
完成時期 2023年6月
引渡時期
設備
東北電力・仙台市上下水道・オール電化仕様(建物敷地内へのガスの配管の引込はありません)
建築
ガイドライン
建築にあたり、当販売団地におけるガイドラインに沿った建築をしております。
備考
【登録抽選申込】
登録受付期間:令和8年1月4日(日)~1月30日(金)15:00迄
       ※火・水曜定休
抽 選 日 :令和8年1月30日(金)17:00
■モデル棟使用期間/令和6年3月1日~令和8年1月31日まで使用予定
■先着順販売期間/令和7年10月4日~令和7年12月25日
■登録受付場所/現地モデルハウス(スマートハイムシティ郡山:E棟)
■抽選場所/セキスイハイム東北株式会社 宮城支店
※登録の際には、令和5年・6年分の収入証明書、身分証明書(健康保険証・運転免許証)および印鑑が必要です。

記載の建物面積は未登記のため、建築確認申請の面積に依ります。
記載のパース図・間取図は概略図のため、実際と異なる場合があります。
記載の販売価格には土地・建物価格、外構(駐車場・門柱・境界フェンス・植栽等)、消費税10%を含みます。
自動車その他の備品は含まれません 。
E棟の敷地の一部には地役権が設定されております。
間取図に記載の家具は現状と異なります。
太陽光発電:4.32kW・蓄電池:9.9kWh・エアコン3台付き・快適エアリー(第一種換気)

お問い合わせ

セキスイハイム東北株式会社 宮城支店
0120-028-816
| 営業時間 10:00~18:00 |
※定休日は火曜日、水曜日です。
※年末年始・夏季休暇を頂いている場合があります。